Khu đô thị Tân Hiệp, quy hoạch huyện Hóc Môn 2014
Vị trí khu đô thị Tân Hiệp
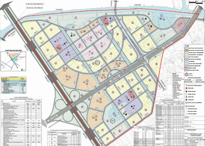
Khu đô thị Tân Hiệp thuộc ấp Thới Tây 1, xã Tân Hiệp, huyện Hóc Môn, TpHCM với diện tích 290,18 ha.
Khu đô thị Tân Hiệp có địa thế rất thuận tiện về mặt khí hậu, lưu thông đi lại được liên kết với các tỉnh như Long An, Đồng Nai, Bình Dương, Tây Ninh, trung tâm TpHCM bằng con đường Vành đai 3 và Quốc Lộ 22 vi thế nó rất có tiềm năng trở thành trung tâm kinh tế sôi động.
Cơ sở pháp lý của khu đô thị Tân Hiệp

QĐ Phê duyệt: 5075/QĐ-UBND ngày 16/10/2014 của UBND Thành phố
Các công trình trọng điểm hiện có tại khu đô thị Tân Hiệp
Khu đô thị Tân Hiệp được UBND TpHCM phê duyệt tháng 10 năm 2014 thì năm 2016 trường trung học cơ sở Đỗ Văn Dậy có quy mô lớn đã khai trương năm học đầu tiên ( nằm ở mặt tiền đường Huỳnh Thị Mài, ngay gần khu đô thị Tân Hiệp này luôn ).
Ngay bên cạnh trường trung học cơ sở Đỗ Văn Dậy là trường tiểu học Tân Hiệp cũng đã khởi công xây dựng, dự kiến xong vào đầi năm 2018.
Một mặt giáp với kênh Xáng vì thế khí hậu khu vực này rất mát mẻ, có độ ẩm không khí phù hợp, hy vọng một môi trường sống trong lành cho người dân sinh sống ở khu đô thị này.
Chúc mọi người tìm được ý tưởng kinh doanh nhà đất cho mình khi đọc bản tin này.







